Project Gallery

Office Renovation

(Architect of Record for Onyx Architectural Services and Engineering)

Duplex Rehabilitation

Dormer Addition

Residential Rehab

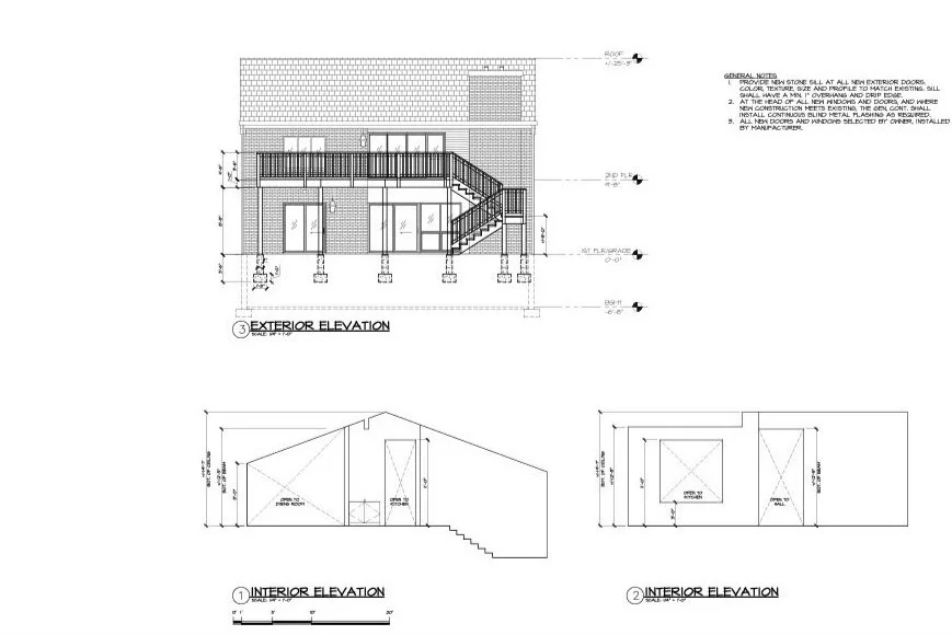
Porch / Desk Design and Rehab Construction Drawings

Kitchen Renovation

City of Chicago Invest South/West: North Lawndale

(Architect of Record for Onyx Architectural and Engineering Services)

Nightclub / Restaurant

(Architect of Record for Onyx Architectural and Engineering Services)